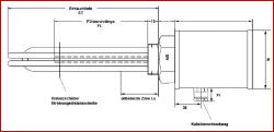
Einschraubheizkörper 



Z-Einschraubheizkörper THE 



Lagerliste Einschraubheizkörper.pdf [171 KB]



AUFBAU

Heizelemente:
Rohrheizkörper oder Heizpatronen sind in ein Einschraubgewinde je nach Anwendung harteingelötet oder . eingeschweißt. Je nach Medium und Anwendung stehen verschiedene Werkstoffe zur Auswahl: 1.4541/1.4571/1.4828/1.4876/2.4858/ Sonderlegierungen. Bei Einsatz in aggressiven Medien(z.B. Säuren) können die Heizelemente PTFE beschichtet werden.

Einschraubgewinde:
Zum Einsatz kommen metrische und zöllige Einschraubgewinde (1", 1 1/4", 1 1/2", 2", 2 1/2"). Je nach Anwendung werden folgende Werkstoff verabeitet: Messing/1.4301/1.4571/Sonderlegierungen

unbeheizte Zone LU:
In diesem Bereich erfolgt keine Beheizung. Dieser Bereich wird auch als Kaltzone bezeichnet. Entspricht mindestens der Muffenlänge am Behälter.

Kühlstrecke:
Diese Zone ist notwendig um das Anschlussgehäuse thermisch von der Heizung zu trennen, je höher die Einsatztemperatur desto länger die Kühlstrecke, Sie kann offen oder geschlossen ausgeführt werden.

Distanzscheiben:
Sie dienen zur Stabilisierung des Heizbündels. Bei Strömungsbetrieb sind zusätzliche Öffnungen in den Distanzscheiben, um den Druckverlust so gering, wie möglich zu halten. Man spricht auch von einem Strömungslabyrinth.

Fühlerschutzrohre:
Es können mehrere Fühlerschutzrohre zur Aufnahme von Temperatur- fühlern / Messsonden vorgesehen werden. Zu dem können diesen auch mit den Rohrheizkörpern verlötet/verschweisst werden, um die Oberflächentemperatur der Heizelemente zu überwachen.

Anschlussgehäuse:
Je nach Einsatzbedingung und Umgebung können Anschlussgehäuse aus Kunststoff, Aluminium, lackierten Stahl oder Edelstahl in den Schutzarten IP50, IP54, IP65 und IP 68 vorgesehen werden.



EINSATZ:

Medium:
Flüssigkeiten und gasförmige Medien können mit Conapp Einschraubheizkörpern beheizt werden. z.B. VE-Wasser,wässrige Lösungen , Öl, Thermalöl,Kraftstoffe, Säuren, Laugen, Bitumen ect. , sowie Luft, Gas, Dampf uvm.

Anwendungsgebiete:
Brauchwassererwärmung, Dieselvorwärmung, Waschanlagen, Lufterhitzer, Gasvorwärmer, Dampferzeuger und viele andere verfahrenstechnische Anwendungen

Explosionsschutz nach Richtlinie 94/9/EG (ATEX):
EX e (eigensicher) oder EX d (druckfest gekapselt) möglich für Zone 1 und Zone 2



ELEKTRISCHE AUSFÜHRUNG:

Stufenschaltung:
Die Heizelemente können in Gruppen mit gleicher oder unterschiedlicher Leistung verschaltet werden, jede dieser Gruppen ist einzeln ansteuer- und regelbar.

Temperaturegler TR:
Schaltstufen bis 10KW können direktschaltend verdrahtet werden, bei größeren Leistungen erfolgt die Lastschaltung über Schaltschütze oder elektronische Regelungen mit Thyristorstellern in einem externen Schaltschrank.

Sicherheitstemperaturbegrenzer STB:
Schaltstufen bis 20KW können mit festeingestellten 3-poligen Sicherheitstemperaturbegrenzer direktschaltend verdrahtet werden. Bei größeren Leistungen und bei einpoligen, einstellbaren Sicherheitstemperaturbegrenzern erfolgt die Lastschaltung über Schaltschütze in einem seperaten Schaltschrank. Der STB dient als Sicherheits-
funktion, falls die Temperaturregelung ausfällt.

Temperaturfühler :
PT-100 oder Thermoelemente können als Meßsonden für externe elektronische Temperaturregler oder SPS-Steuerungen installiert werden. Diese Temperaturfühler können auch mit dem Heizelementemantel verbunden werden. Somit läßt sich die Oberflächentemperatur der Heizelemente regeln bzw. begrenzen.




THE Anschlußgehäuse 200x200x120

SONSTIGES

Download:
einschraubheizkoerper-the.pdf [103 KB]
lagerliste einschraubheizkoerper the.pdf [171 KB]



Erweiterung zum Durchlauferhitzer

Durchlauferhitzer:
Zusammen mit einem Strömungsrohrr können unsere Einschraubheizkörper zur CON-THERME mini erweitert werden.

Weitere Infos: Durchlauferhitzer CON-Therme mini




Durchlauferhitzer "single"

Wir beraten Sie gerne .....TELEFON +49 (0) 9443 3031!!



Conapp
Frönaustraße 28-30
93326 Abensberg/Off.




Apparatebau
Tel. 0049 (0) 9443 / 3031
Fax 0049 (0) 9443 / 3707

GmbH
Email: info@conapp.de
Web: www.conapp.de