|
 |
 |
 |
 |
 |
|
 |
|
 |
 |
Strömungserhitzer 3 |
|
 |
 |
|
 |
|
 |
 |
Z-Strömungserhitzer CON-THERME |
|
 |
 |
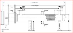
Aufbau |
 |
|
Heizeinsatz: Conapp-Flanschheizkörper FHE technische Ausführung siehe Datenblatt Flanschheizkörper FHE
Strömungsbehälter: Dimensionen der CON-THERME: Strömungsbehälter-Ø bis DN1000, Baulänge bis 3300mm möglich. Lage und Dimension des Ein- und Austrittes können kundenspezifisch angepaßt werden. Kaskadenschaltungen sind möglich. Werkstoff: Stahl/1.4301/1.4571/Sonderlegierungen, Oberflächenbehandlung: beizen, passivieren, glasperlenstrahlen, grundieren, elektropolieren.
unbeheizte Zone LU: In diesem Bereich erfolgt keine Beheizung. Entspricht in der Regel mindestens der Länge bis zum Mediumeintritt am Behälter.
Kühlstrecke: Diese Zone ist notwendig um das Anschlussgehäuse thermisch von der Heizung zu trennen, je höher die Einsatztemperatur desto länger die Kühlstrecke, Sie kann offen oder geschlossen ausgeführt werden.
Isolierung optional: Mineralwollisolierung mit Blechmantel (Edelstahl oder Stahl verzinkt). Isolierdicke und Isoliermaterial werden auf die jeweilige Einsatztemperatur abgestimmt.
Anbauteile: An den Strömungsbehälter können Standfüße oder Halterung (Kranöse) nach Kundenvorgabe angebracht werden
Anschlüsse: Zusätzlich zu den Mediumanschlüssen können Muffen oder Flansche für Meßsonden, Strömungswächtern usw. installiert werden.
Anschlussgehäuse: Je nach Einsatzbedingung und Umgebung können Anschlussgehäuse aus lackierten Stahl oder Edelstahl in den Schutzarten IP54, IP65 und IP 68 vorgesehen werden.
|
 |

Strömungserhitzer Kaskade
|
EINSATZ: |
 |
|
Medium: Flüssigkeiten und gasförmige Medien können mit Conapp Strömungseritzern beheizt werden. z.B. VE-Wasser,wässrige Lösungen , Öl, Thermalöl,Kraftstoffe, Säuren, Laugen, Bitumen ect. , sowie Luft, Gas, Dampf uvm.
Anwendungsgebiete: Brauchwassererwärmung, Dieselvorwärmung, Waschanlagen, Lufterhitzer, Gasvorwärmer, Dampferzeuger und viele andere verfahrenstechnische Anwendungen
Explosionsschutz nach Richtlinie 94/9/EG (ATEX): EX e (eigensicher) oder EX d (druckfest gekapselt) möglich für Zone 1 und Zone 2
|
 |
 |
ELEKTRISCHE AUSFÜHRUNG: |
 |
|
Stufenschaltung: Die Heizelemente können in Gruppen mit gleicher oder unterschiedlicher Leistung verschaltet werden, jede dieser Gruppen ist einzeln ansteuer- und regelbar.
Temperaturegler TR: Schaltstufen bis 10KW können direktschaltend verdrahtet werden, bei größeren Leistungen erfolgt die Lastschaltung über Schaltschütze oder elektronische Regelungen mit Thyristorstellern in einem externen Schaltschrank.
Sicherheitstemperaturbegrenzer STB: Schaltstufen bis 20KW können mit festeingestellten 3-poligen Sicherheitstemperaturbegrenzer direktschaltend verdrahtet werden. Bei größeren Leistungen und bei einpoligen, einstellbaren Sicherheitstemperaturbegrenzern erfolgt die Lastschaltung über Schaltschütze in einem seperaten Schaltschrank. Der STB dient als Sicherheits- funktion, falls die Temperaturregelung ausfällt.
Temperaturfühler : PT-100 oder Thermoelemente können als Meßsonden für externe elektronische Temperaturregler oder SPS-Steuerungen installiert werden. Diese Temperaturfühler können auch mit dem Heizelementemantel verbunden werden. Somit läßt sich die Oberflächentemperatur der Heizelemente regeln bzw. begrenzen.
|
 |

Anschlußgehäuse Flanschheizkörper
|
SONSTIGES |
 |
|
Download: stroemungserhitzer-con-therme.pdf [523 KB]
|
 |
 |
AUSFÜHRUNG MIT ELEKTRONISCHER REGELUNG |
 |
|
optional Temperaturregeleinheit: Mit einer externen elektronischen Temperaturregelung CON-TRSSE können Heizeinsätze und Durchlauferhitzer genau geregelt und mit integrierten Strömungswächter und Sicherheitstemperaturbegrenzung überwacht werden. Weitere Infos :Temperaturregeleinheit CON-TRSSE
|
 |

CON-TRSSE mit Zeitschaltuhr und Pumpensteuerung
|
|
 |
|
Wir beraten Sie gerne .....TELEFON +49 (0) 9443 3031!!
|
 |
 |
|
 |
|
Conapp Frönaustraße 28-30 93326 Abensberg/Off.
|
Apparatebau Tel. 0049 (0) 9443 / 3031 Fax 0049 (0) 9443 / 3707 |
GmbH Email: info@conapp.de Web: www.conapp.de |
|
 |
 |
|
 |